Rénovation complète d’une maison – Presqu’île de Crozon

by Abelya, janvier 25, 2018

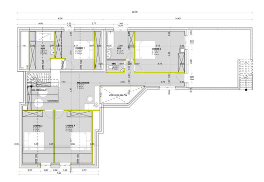
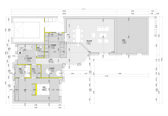
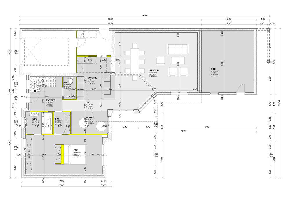
Rénovation complète et extension d’une maison suite à un incendie.
Un projet réalisé par Abelya Construction, en collaboration avec l’agence Arch’ici.

  • TYPE DE PROJET : Rénovation de maison
  • Année : 2018
  • TEMPS DE RÉALISATION :
  • Localisation : Presqu'île de Crozon